Cửa Thép Chống Cháy 1 Cánh là giải pháp tối ưu được thiết kế để bảo vệ người và tài sản trong trường hợp khẩn cấp. Cửa thép chống cháy được lắp đặt tại các vị trí khác nhau trong chung cư, nhà dân và các khu vực đông người để đảm bảo an toàn phòng cháy chữa cháy.
Thông số kỹ thuật
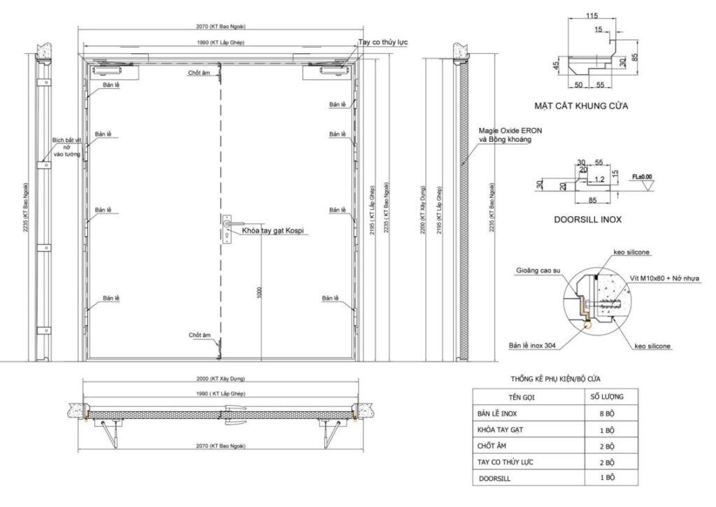
| Chất liệu | Thép gấp định hình, chịu nhiệt cao |
| Cánh cửa | Rộng x cao x dày: 1110 x 2350 x 50 (mm) |
| Kích thước | Rộng x cao: 1220 x 2350 (mm) |
| Giới hạn chịu lửa | 60 – 180 phút |
| Tiêu chuẩn | Đạt tiêu các tiêu chuẩn ASTM E119, NFPA 252 |

Cấu tạo của cửa chống cháy 1 cánh
Cửa chống cháy 1 cánh thông thường sẽ được cấu tạo từ 5 phần chính sau:
- Khung bao: Làm từ thép chống gỉ đảm bảo độ bền và chắc chắn
- Cánh cửa: Làm từ thép dày có lớp cách nhiệt Honeycomb hoặc Rockwool bên trong để tăng khả năng chống cháy
- Bề mặt: Hoàn thiện bằng sơn tĩnh điện, sơn vân gỗ hoặc sơn dầu để tăng tính thẩm mỹ
- Bản lề và khóa: Bản lề chịu lực, khóa an toàn đảm bảo cửa được đóng kín và chắc chắn
- Phụ kiện: Bulong, ốc vít, keo dán, cao su để tăng cường độ bền và khả năng chống thấm nước

Ưu điểm nổi bật của cửa chống cháy 1 cánh
An Toàn Tuyệt Đối: Chịu được nhiệt độ cao, không biến dạng, ngăn lửa và khói lan rộng khi cháy nổ.
Tiết kiệm chi phí: Vật liệu chất lượng cao, ít bảo trì, tiết kiệm chi phí vận hành lâu dài.
Thiết kế: Đa dạng phù hợp với mọi công trình kiến trúc từ nhà ở, văn phòng đến khách sạn,..
➤➤➤ Ngoài ra quý khách có thể tham khảo thêm mẫu cửa thép chống cháy 2 cánh
Một số mẫu cửa chống cháy 1 cánh tại Cửa NTP





Tiêu Chuẩn An Toàn Và Chứng Nhận Của Cửa Thép Chống Cháy 1 Cánh
Cửa Thép Chống Cháy 1 Cánh được sản xuất bởi Cửa NTP luôn tuân thủ các tiêu chuẩn an toàn cao nhất và đã được chứng nhận bởi các cơ quan uy tín trong ngành.
Dưới đây là một số tiêu chuẩn và chứng nhận quan trọng của sản phẩm:
1. Tiêu Chuẩn Quốc Gia
Tiêu Chuẩn ASTM E119: Tiêu chuẩn này xác định phương pháp kiểm tra khả năng chống cháy của cửa trong một khoảng thời gian nhất định dưới tác động của lửa và áp suất.
Tiêu Chuẩn NFPA 252: Tiêu chuẩn của Hiệp Hội Bảo Vệ Cháy Nổ Quốc Gia (NFPA) để kiểm tra hiệu suất chống cháy của cửa trong các điều kiện thử nghiệm chuẩn.
Xem thêm: Tiêu chuẩn cửa thép chống cháy – Cập nhật mới nhất
2. Chứng nhận và kiểm định cửa chống cháy

3. Chứng Nhận Khác
Chứng nhận ISO 9001 chứng minh rằng quy trình sản xuất của sản phẩm tuân thủ các tiêu chuẩn quản lý chất lượng quốc tế.
Chứng Nhận Hệ Thống An Toàn Cháy Nổ (FM Approved): Chứng nhận từ Cơ quan Kiểm định FM (Factory Mutual) đảm bảo rằng sản phẩm đáp ứng các tiêu chuẩn an toàn cháy nổ của FM Global.
Cửa Thép Chống Cháy 1 Cánh tại Cửa NTP luôn tuân thủ đầy đủ các tiêu chuẩn an toàn quốc gia và quốc tế, được chứng nhận bởi các tổ chức uy tín. Điều này đảm bảo cửa đáp ứng các yêu cầu cao nhất về an toàn và hiệu suất, mang lại sự yên tâm tuyệt đối cho các công trình xây dựng.
Bài viết hữu ích: Thông tin mới nhất về kiểm định cửa chống cháy 2024























