Cửa thép chống cháy tại Công Ty TNHH Vật Tư Xây Dựng NTP được sản xuất theo tiêu chuẩn cửa chống cháy BS EN 15269-10:2011( Anh), đã được Cục Cảnh sát PCCC và cứu hộ, cứu nạn – Bộ Công An Việt Nam chứng nhận về khả năng chịu đựng nhiệt độ cao, ngăn chặn sự lan truyền của khói lửa trong một khoảng thời gian nhất định.
Cửa thép chống cháy chịu nhiệt tốt, ngăn ngọn lửa lan rộng, giúp người dân có thời gian thoát nạn và bảo vệ tài sản. Được lắp đặt ở các khu vực lối thoát hiểm tại chung cư, trung tâm thương mại, bệnh viện, nhà xưởng,…
➦➦➦ Click ngay vào đây để xem các dòng cửa chống cháy khác
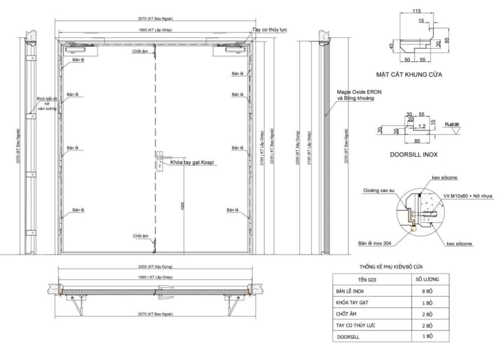
I/ Cấu tạo của cửa thép chống cháy
Cửa thép chống cháy được thiết kế với cấu tạo tiêu chuẩn nhằm đảm bảo an toàn tối đa trong trường hợp xảy ra hỏa hoạn. Dưới đây là các thành phần cơ bản của cửa thép chống cháy:
- Khung bao
- Cánh cửa
- Bản lề
- Khóa cửa
- Ron chống cháy
- Phụ kiện

Thông số kỹ thuật:
| Chất liệu | Thép mạ kẽm, thép không gỉ |
| Cánh cửa | Dày khoảng 45 – 50mm |
| Lõi cánh cửa | Bên ngoài: Tấm chống cháy Eron (Calcium Silicate) dày từ 5mmBên trong: Sử dụng bông Rockwool hoặc Glasswool |
| Giới hạn chịu lửa | Từ 60, 90 đến 120 phút |
| Tiêu chuẩn | Đạt tiêu các tiêu chuẩn BS EN 15269-10:2011, TCVN 9383:20121 |
II/ Báo giá các loại cửa thép chống cháy tại Cửa NTP
Cửa thép chống cháy là một trong những giải pháp an toàn và hiệu quả nhất trong việc bảo vệ tài sản và con người trước nguy cơ cháy nổ. Tuy nhiên, giá thành của cửa thép chống cháy có thể thay đổi phụ thuộc vào nhiều yếu tố khác nhau.
| Loại cửa | Bảng giá |
| Cửa thép chống cháy | 5.500.000đ |
| Cửa thép chống cháy 1 cánh | 5.500.000đ |
| Cửa thép chống cháy 2 cánh | 5.500.000đ |
➤➤➤ Lưu ý: Bảng giá trên chưa bao gồm phụ kiện
Các yếu tố ảnh hưởng đến giá cửa thép chống cháy
1. Chất Liệu
Loại thép sử dụng: Thép sử dụng để sản xuất cửa chống cháy có thể khác nhau về chất lượng và giá thành. Thép chất lượng cao, có khả năng chống ăn mòn và chịu nhiệt tốt sẽ có giá cao hơn.
Lớp phủ bề mặt: Cửa thép chống cháy thường được phủ một lớp sơn tĩnh điện hoặc mạ kẽm để tăng khả năng chống gỉ sét và tăng tuổi thọ sản phẩm. Lớp phủ này không chỉ bảo vệ cửa mà còn tăng tính thẩm mỹ, và đương nhiên, nó cũng làm tăng chi phí sản xuất.

2. Kích thước và độ dày
Kích thước tiêu chuẩn và kích thước tùy chỉnh: Cửa thép chống cháy có thể được sản xuất theo kích thước tiêu chuẩn hoặc tùy chỉnh theo yêu cầu của khách hàng. Cửa có kích thước lớn hơn hoặc kích thước không theo tiêu chuẩn thường có giá cao hơn do cần nhiều nguyên liệu hơn và quy trình sản xuất phức tạp hơn.
Độ dày cánh cửa và khung cửa: Độ dày của cánh cửa và khung cửa cũng ảnh hưởng đáng kể đến giá thành. Cửa dày hơn thường có khả năng chống cháy tốt hơn nhưng cũng đồng nghĩa với việc giá thành sẽ cao hơn.
3. Thời gian chống cháy
Các mức thời gian chống cháy: Thời gian chống cháy của cửa (30 phút, 60 phút, 90 phút, vv.) là một yếu tố quan trọng ảnh hưởng đến giá. Cửa có thời gian chống cháy càng dài thì chi phí sản xuất càng cao, do cần sử dụng các vật liệu và kỹ thuật đặc biệt để đạt được mức độ chống cháy cao hơn.

4. Phụ kiện đi kèm
Khóa, tay nắm, bản lề, chốt an toàn: Các phụ kiện đi kèm cửa thép chống cháy cũng sẽ ảnh hưởng đến giá thành của sản phẩm. Những phụ kiện chất lượng cao có tính năng an toàn cao sẽ làm tăng tổng chi phí của cửa. Đặc biệt, các phụ kiện này phải được làm từ vật liệu chịu nhiệt và có độ bền cao để đảm bảo cửa hoạt động hiệu quả trong điều kiện cháy nổ.
Xem ngay: 8 loại phụ kiện cửa chống cháy không thể thiếu
5. Thiết kế và tính năng đặc biệt
Cửa đơn, cửa đôi, cửa kính thép chống cháy: Loại cửa và thiết kế cụ thể (cửa đơn, cửa đôi, cửa kính thép chống cháy) cũng ảnh hưởng đến giá thành. Cửa có thiết kế phức tạp hơn hoặc có tính năng đặc biệt sẽ có giá cao hơn.
Các tính năng bổ sung như cách âm, cách nhiệt: Ngoài khả năng chống cháy, một số cửa thép còn được trang bị thêm các tính năng như cách âm, cách nhiệt. Những tính năng này không chỉ tăng cường sự tiện nghi và an toàn mà còn làm tăng chi phí sản xuất và lắp đặt.

➤➤➤ Để có mức giá ưu đãi nhất quý khách hàng vui lòng liên hệ ngay với chúng tôi qua hotline: 0878502555
II/ Các loại cửa thép chống cháy có tại Cửa NTP
Trên thị trường hiện nay, có nhiều loại cửa thép chống cháy với các mức độ tiêu chuẩn khác nhau, từ 60 phút đến 120 phút, từ cửa 1 cánh đến cửa 2 cánh. Dưới đây là một số mức độ tiêu chuẩn phổ biến:
Cửa thép chống cháy 60 phút
Đây là mức độ tiêu chuẩn phổ biến và được sử dụng rộng rãi trong các công trình dân dụng và thương mại. Cửa thép chống cháy 60 phút có khả năng chịu nhiệt độ cao và ngăn chặn sự lan truyền của lửa trong vòng 60 phút, đủ để tạo ra lối thoát an toàn cho người dân.

Cửa thép chống cháy 90 phút
Mức độ tiêu chuẩn này yêu cầu cửa có khả năng chống cháy trong vòng 90 phút. Thích hợp cho các khu vực có nguy cơ cháy cao hoặc cần thời gian dài hơn để sơ tán người dân và cứu hỏa.

Cửa thép chống cháy 120 phút
Đây là mức độ tiêu chuẩn cao nhất cho cửa thép chống cháy trên thị trường. Cửa chống cháy 120 phút có khả năng chịu nhiệt độ cao và ngăn chặn sự lan truyền của lửa trong vòng 120 phút, đảm bảo an toàn tuyệt đối cho người dân trong trường hợp khẩn cấp.

Cửa thép chống cháy 1 cánh
Cửa chống cháy 1 cánh thường được sử dụng cho các căn hộ, văn phòng nhỏ hoặc khu vực có diện tích hạn chế. Chúng dễ lắp đặt và vận hành, đồng thời vẫn đảm bảo tính chất chống cháy và an toàn.

Cửa thép chống cháy 2 cánh
Cửa chống cháy 2 cánh thường được sử dụng cho các khu vực có diện tích lớn như cửa hàng, siêu thị, nhà hàng… Với thiết kế hai cánh mở ra hai bên, cửa này tạo ra lối thoát rộng rãi và thuận tiện cho việc sơ tán trong trường hợp khẩn cấp.

Trên đây là một số thông tin cơ bản về cửa thép chống cháy, từ cấu tạo, mức độ tiêu chuẩn đến các loại cửa phổ biến trên thị trường. Việc lựa chọn cửa thép chống cháy phù hợp không chỉ giúp bảo vệ an toàn cho con người và tài sản mà còn đóng vai trò quan trọng trong việc tuân thủ các quy định về phòng cháy chữa cháy. Hy vọng rằng bài viết này đã cung cấp cho bạn cái nhìn tổng quan và hữu ích khi chọn lựa cửa thép chống cháy cho công trình của mình.















