Lam chắn nắng đầu đạn,
còn được gọi là lam chắn nắng đầu đạn, là một giải pháp tiên tiến trong việc kiểm soát ánh sáng mặt trời và nhiệt độ cho các công trình xây dựng. Với thiết kế độc đáo và hiện đại, chắn nắng đầu đạn không chỉ mang lại hiệu quả cao trong việc chắn nắng mà còn tăng cường vẻ đẹp thẩm mỹ cho các tòa nhà.
Vật Tư Xây Dựng NTP cung cấp nhiều lựa chọn về màu sắc và chất liệu hoàn thiện. Các mầu có sẵn theo bảng mầu bên dưới, các yêu cầu khác có thể thực hiện theo yêu cầu.
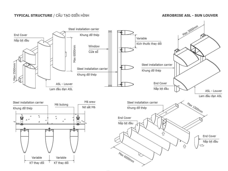
I. Cấu tạo cơ bản của lam chắn nắng hình viên đạn
Lam chắn nắng hình viên đạn (aerofoil louver) được thiết kế với tương đối đơn giản bao gồm:
- Thanh lam đầu đạn
- Hệ khung đỡ thép
- Hệ phụ kiện đi kèm như nở sắt, nắp bịp đầu
Thông số kỹ thuật cơ bản:
- Thanh lam nhôm định hình rộng 100 – 450 (mm)
- Chiều cao: 100 – 400 mm
- Chiều dày tiêu chuẩn: 1.0 – 3.0 mm
- Chiều dài tiêu chuẩn: Sản xuất theo yêu cầu
- Màu sắc đa dạng
- Đạt chuẩn ISO 9001-2015



II. Ưu điểm nổi bật lam chắn nắng hình viên đạn
Lam chắn nắng hình viên đạn là giải pháp vượt trội cho các công trình hiện đại, mang lại nhiều lợi ích cả về hiệu quả sử dụng và tính thẩm mỹ. Những ưu điểm nổi bật của sản phẩm có thể dễ dàng kể tới như:
- Thiết kế khí động học giúp giảm ánh nắng mặt trời chiếu trực tiếp, hạn chế nhiệt độ bên trong công trình, đồng thời duy trì ánh sáng tự nhiên và thông thoáng không khí.
- Được làm từ hợp kim nhôm cao cấp, sản phẩm có khả năng chống ăn mòn, chịu được thời tiết khắc nghiệt và có tuổi thọ lâu dài.Hình dạng viên đạn hiện đại, kích thước và màu sắc phong phú, phù hợp với nhiều phong cách kiến trúc, từ nhà ở dân dụng đến các công trình thương mại.
- Hình dạng viên đạn hiện đại, kích thước và màu sắc phong phú, phù hợp với nhiều phong cách kiến trúc, từ nhà ở dân dụng đến các công trình thương mại.
- Có thể thiết kế theo hệ thống điều khiển tự động giúp điều chỉnh ánh sáng phù hợp.



Lam chắn nắng hình viên đạn có kiểu dáng đa dạng, phù hợp với nhiều phong cách kiến trúc, từ hiện đại đến truyền thống, giúp tăng giá trị thẩm mỹ cho mọi công trình từ văn phòng, trường học, bệnh viện cho đến các công trình lớn như nhà ga, sân bay,…
Với phương châm “Sự hài lòng của khách hàng là nền tảng cho sự phát triển lâu dài,” Vật Tư Xây Dựng NTP tự hào là đơn vị cung cấp các loại lam chắn nắng chất lượng cao với mức giá cạnh tranh nhất trên thị trường.
Chúng tôi cam kết bảo hành sản phẩm từ 6 tháng trở lên, khẳng định niềm tin vào chất lượng và độ bền của từng dịch vụ mà công ty mang đến.














