Cửa gỗ chống cháy được sản xuất theo tiêu chuẩn quốc gia TCVN 9383:2012 được Bộ Công An Việt Nam chứng nhận về khả năng chịu lửa trong thời gian từ 15 – 180 phút. Sản phẩm được sử dụng phổ biến trong các công trình phổ biến như: nhà ở, chung cư, văn phòng, trường học,…
Báo giá cửa gỗ chống cháy tại Cua NTP
| THỜI GIAN CHỐNG CHÁY | CHIỀU CAO (mm) | DÀY CÁNH (mm) | ĐƠN GIÁ (VNĐ) |
| 15 phút | 2225 | 34 | 8.450.000 |
| 60 phút | 2225 | 34 | 8.450.000 |
| 90 phút | 2225 | 34 | 8.450.000 |
| 120 phút | 2225 | 34 | 8.450.000 |
Lưu ý: Giá trên chưa bao gồm các phụ kiện, có thể thay đổi tùy vào thời điểm
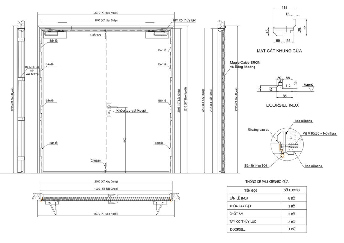
Cấu tạo của cửa gỗ công nghiệp chống cháy
Cửa gỗ chống cháy cũng HCT có khả năng chịu lực và chịu nhiệt tốt hơn so với các loại cửa thông thường. Chúng không bị biến dạng hay mất tính năng khi tiếp xúc với nhiệt độ cao trong thời gian dài, điều này giúp ngôi nhà của bạn được bảo vệ an toàn hơn trong trường hợp cháy nổ xảy ra.
Cửa gồm các bộ phận chính sau:
- Khung cửa: Làm từ gỗ công nghiệp ( MDF – HDF) kết hợp với gỗ tự nhiên
- Cánh cửa: Làm từ gỗ HDF hoặc MDF, bên trong có lớp cách nhiệt
- Ron chống cháy: Mở rộng 90°C , làm kín chặt các khe hở , ngăn khói độc
- Lớp khung xương: Làm từ gỗ ghép thanh, tăng độ chắc chắn
- Lớp phủ bề mặt: Gỗ công nghiệp HDF hoặc MDF tẩm hóa chất ngăn lửa, dày 5-12mm, với nhiều màu sắc và hoa văn tăng tính thẩm mỹ


Thông số kỹ thuật cơ bản:
| KÍCH THƯỚC TIÊU CHUẨN | 991×2205, 1048×2225 |
|---|---|
| Khung cửa | 991 x 2205mm |
| Cánh cửa | Độ dày từ 45 – 55mm |
| Lớp phủ bề mặt | Độ dày từ 5 – 12mm – Nhiều màu sắc |
| Thời gian chịu lửa | 15 – 180 phút |
Ưu điểm nổi bật của cửa gỗ chống cháy HCT
Chống cháy hiệu quả: Được thiết kế để ngăn chặn lửa lan rộng trong một khoảng thời gian nhất định (15, 30, 60, 90, hoặc 120 phút), giúp bảo vệ an toàn cho con người và tài sản trong trường hợp hỏa hoạn.
Ngắn khói và khí độc: Với lớp ron chống cháy, cửa gỗ này có khả năng kín chặt các khe hở khi gặp nhiệt độ cao, ngăn không cho khói và khí độc xâm nhập vào khu vực an toàn.
Bền bỉ: Được làm từ gỗ tự nhiên và gỗ công nghiệp chất lượng cao như MDF hoặc HDF, cửa gỗ chống cháy có độ bền cao, chịu lực tốt và ít bị cong vênh.
Cách Âm Tốt: Cấu tạo đặc biệt của cửa giúp giảm tiếng ồn từ bên ngoài, tạo ra môi trường yên tĩnh và thoải mái bên trong.
Thẩm mỹ cao: Lớp phủ bề mặt bằng gỗ công nghiệp HDF hoặc MDF được tẩm hóa chất ngăn lửa, có nhiều màu sắc hoa văn khác nhau phù hợp với nhiều phong cách nội thất.
Ngoài ra, cửa gỗ chống cháy HCT còn phù hợp với rất nhiều loại công trình như nhà ở, văn phòng, trung tâm thương mại, bệnh viện và trường học, đảm bảo an toàn trong mọi môi trường.
Các loại cửa gỗ chống cháy có tại Hàng Công Trình
1. Cửa gỗ chống cháy 15 phút
Cửa gỗ chống cháy 15 phút là giải pháp an toàn và hiệu quả cho các công trình xây dựng, giúp bảo vệ tính mạng và tài sản trước nguy cơ hỏa hoạn. Với khả năng chịu lửa trong khoảng thời gian 15 phút, loại cửa này đảm bảo người sử dụng có đủ thời gian để thoát hiểm hoặc chờ đợi sự can thiệp của lực lượng cứu hỏa.

2. Cửa gỗ chống cháy 60 phút
Cửa gỗ chống cháy 60 phút là loại cửa được thiết kế đặc biệt để chịu được lửa trong vòng 60 phút, giúp ngăn chặn sự lan rộng của đám cháy và bảo vệ người và tài sản. Sử dụng cửa gỗ chống cháy 60 phút là một giải pháp tối ưu cho các công trình xây dựng như căn hộ, văn phòng, khách sạn, và nhà xưởng, đảm bảo an toàn và nâng cao giá trị sử dụng của công trình.

3. Cửa gỗ chống cháy 90 phút
Cửa gỗ chống cháy 90 phút là loại cửa được thiết kế để chịu lửa trong vòng 90 phút, đảm bảo an toàn tối đa cho người và tài sản trong trường hợp xảy ra hỏa hoạn. Với các tính năng nổi bật như khả năng chống cháy, cấu tạo chắc chắn,… Cửa gỗ chống cháy 90 phút chắc chắn sẽ là giải pháp hoàn hảo cho các công trình như căn hộ, văn phòng, khách sạn, và nhà xưởng, giúp nâng cao mức độ an toàn và giá trị của công trình.

4. Cửa gỗ chống cháy 120 phút
Cửa gỗ chống cháy 120 phút là loại cửa đặc biệt được thiết kế để chịu lửa trong vòng 120 phút, mang lại mức độ an toàn cao nhất cho người và tài sản trong các tình huống khẩn cấp.

Tiêu chuẩn cửa gỗ chống cháy
Tiêu chuẩn chống cháy đối với cửa gỗ chống cháy tại các khu vực đông người như chung cư, nhà xưởng hiện nay ít nhất là 60 phút, 90 phút đến 180 phút.
Để đạt được các tiêu chuẩn khắt khe trên, trong quá trình sản xuất cửa gỗ chống cháy của CuaNTP luôn tuân thủ theo các quy định của TCVN 9383:2012:
- Kết cấu: Cửa phải giữ nguyên kết cấu (khuôn, cánh), không hư hỏng khi tiếp xúc với lửa trong suốt thời gian thử nghiệm. Nhiệt độ ngọn lửa có thể tăng tối đa đến 1000 độ C, mô phỏng tình huống hỏa hoạn thực tế.
- An toàn không khí: Cửa phải bảo đảm nồng độ không khí an toàn, ngăn khói độc xâm nhập, không gây nguy hiểm cho người bị kẹt bên trong.
- Kiểm soát nhiệt độ: Mặt còn lại của cửa, không tiếp xúc trực tiếp với lửa, phải bảo đảm nhiệt độ không vượt quá 220 độ C, giúp người bên trong có đủ thời gian để thoát ra ngoài an toàn.
