Khi lắp đặt cửa, việc tính toán diện tích (m²) cửa chính xác là rất quan trọng để lựa chọn kích thước phù hợp, ước tính chi phí vật liệu và thi công. Tuy nhiên, không phải ai cũng biết cách đo lường và tính toán đúng, đặc biệt với những loại cửa có thiết kế phức tạp.
Trong bài viết này, chúng tôi sẽ hướng dẫn bạn cách tính mét vuông cửa một cách đơn giản, nhanh chóng nhưng vẫn đảm bảo độ chính xác 100%. Hãy cùng Vật Tư Xây Dựng NTP tìm hiểu ngay để dễ dàng áp dụng cho công trình của mình nhé!
I/ Có cần đo và tính chính xác M2 cửa hay không?
Việc đo đạc và tính chính xác M2 cửa là vô cùng cần thiết vì nó giúp bạn chủ động hơn trong việc thi công công trình của mình. Bạn có thể tự chọn được kích thước cửa hợp với phong thủy và diện tích công trình. Từ bản thiết kế bạn có thể hiểu rõ được sử hợp lý của từng chi tiết, bộ phận cửa. Từ đó bạn thay đổi hoặc chỉnh sửa vừa phù hợp phong thủy, vừa hợp lý về mặt thẩm mỹ.
- Chọn được kích thước chuẩn theo phong thủy sẽ giúp gia đình, doanh nghiệp của bạn làm ăn phát đạt, tài lộc dồi dào. Bạn sẽ không tốn quá nhiều thời gian cho việc đi tham khảo ý kiến, tìm kích thước cửa phù hợp với vận mệnh của mình.
- Những nhân viên hỗ trợ nếu biết cách tính mét vuông cửa có thể hỗ trợ chính xác cho khách hàng cần thi công cửa. Từ đó sẽ tạo được niềm tin và chất lượng trong lòng mỗi khách hàng.
![[Bí Kíp] Cách tính mét vuông cửa đơn giản, chính xác 100%! [Bí Kíp] Cách tính mét vuông cửa đơn giản, chính xác 100%!](https://ntp.khomau.com/wp-content/uploads/2025/03/cach-tinh-met-vuong-cua-chinh-xac-100.jpg)
II/ Công thức tính m2 cửa chính xác nhất
Để tính diện tích (m²) cửa một cách chính xác, bạn có thể áp dụng công thức sau:
1. Công thức tính mét vuông cửa
Diện tích cửa (m²) = Chiều rộng (m) × Chiều cao (m)
Trong đó:
- Chiều rộng: Đo kích thước ngang của cửa (từ mép này sang mép kia).
- Chiều cao: Đo từ mép dưới lên đến mép trên của cửa.
Ví dụ:
- Cửa có chiều rộng 1.2m, chiều cao 2.2m. → Diện tích = 1.2 × 2.2 = 2.64m².
2. Cách tính diện tích cửa có thiết kế đặc biệt
Cửa có ô kính hoặc ô thông gió
- Tính diện tích cánh cửa trước.
- Tính diện tích ô kính hoặc ô thông gió rồi cộng vào tổng diện tích.
Cửa vòm (cửa cong)
- Chia cửa thành hình chữ nhật và phần vòm.
- Tính diện tích chữ nhật trước, sau đó tính diện tích vòm theo công thức:
Diện tích vòm = (Bán kính vòm × Bán kính vòm × 3.14) / 2 - Cộng hai phần lại để có tổng diện tích cửa.
Cửa nhiều cánh (2 cánh, 4 cánh, xếp gấp, lùa, v.v.)
- Tính diện tích của từng cánh cửa theo công thức trên rồi cộng lại.
3. Lưu ý để đo kích thước chính xác
- Sử dụng thước dây hoặc thước laser để đo.
- Đo ít nhất 2-3 lần để đảm bảo kết quả chính xác.
- Với cửa có hoa văn hoặc thiết kế đặc biệt, nên tham khảo đơn vị thi công để có cách tính phù hợp.
III/ Kích thước cửa chuẩn theo phong thủy
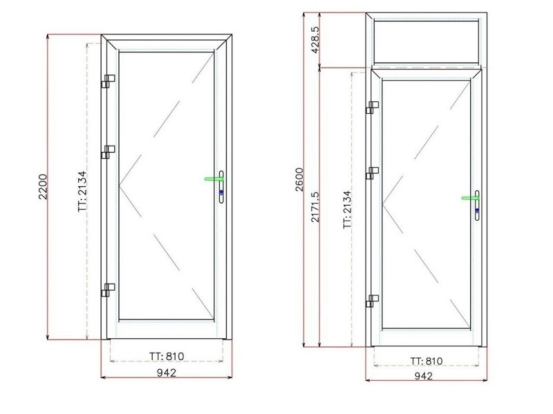
1/ Kích thước cửa 1 cánh
Cửa 1 cánh là loại cửa phổ biến nhất hiện nay và thường được người tiêu dùng lựa chọn nhất. Trong phong thủy thì kích thước đẹp nhất của loại cửa này là 81cm x 212cm, cụ thể là:
- Rộng 81cm. Trong đó, khoảng cách xê dịch cho phép là từ 80,5cm – 81,8cm.
- Cao 212cm. Khoảng cách xê dịch cho phép là từ 210,8cm – 214,2cm
Kết hợp với khuôn bao dày 5,5cm, kích thước cụ thể của cửa là:
- Rộng: 81cm + 5,5cm (bên trái) + 5,5cm (bên phải) = 92cm
- Cao: 212cm + 5,5cm (bên trên) = 217,5cm
![[Bí Kíp] Cách tính mét vuông cửa đơn giản, chính xác 100%! Bản vẽ kỹ thuật tính kích thước cửa 1 cánh - Vật Tư Xây Dựng NTP](https://ntp.khomau.com/wp-content/uploads/2025/02/ban-ve-mo-ta-kich-thuoc-cua.jpg)
2/ Kích thước cửa 2 cánh
Cửa hai cánh lệch nhau thường do yêu cầu của kiến trúc. Đối với loại cửa này thì kích thước phong thủy phổ biến là:
- R109cm x C212cm (xê dịch bề rộng 105,5 – 109cm). Kích thước bề rộng chia 2 cánh tương ứng là 69cm + 40cm.
- R126cm x C212cm (xê dịch bề rộng là 125cm đến 128,5cm). Kích thước bề rộng chia 2 cánh tương ứng là 81cm + 45cm.
![[Bí Kíp] Cách tính mét vuông cửa đơn giản, chính xác 100%! Bản vẽ kỹ thuật cửa đi 2 cánh lùa](https://ntp.khomau.com/wp-content/uploads/2025/03/ban-ve-ky-thuat-cua-di-lua-2-canh.jpg)
>>Chi tiết xem tại: Tiêu chuẩn kích thước cửa chính 2 cánh theo phong thủy
3/ Kích thước cửa sổ
Với phòng có diện tích nhỏ hơn 15m2 thì các bạn nên mở cửa sổ 2 cánh. Còn với phòng có diện tích lớn hơn 15m2 thì các bạn có thể mở cửa sổ 3 cánh hoặc 4 cánh. Mỗi số lượng cánh cửa có tên gọi khác:
- Cửa sổ 2 cánh gọi là Nghênh Phúc Trường Thọ.
- Cửa sổ 3 cánh gọi là Tam Dương Khai Thái.
- Cửa sổ 4 cánh gọi là Tứ Quý.
Kích thước cửa sổ thông dụng:
- Chiều rộng của cửa sổ (cm): 47 – 61 – 69 – 85 – 89 – 108 – 125 – 126
- Chiều cao tương ứng (cm): 59 – 62 – 69 – 88 – 89 – 125 – 133 – 144
![[Bí Kíp] Cách tính mét vuông cửa đơn giản, chính xác 100%! Kích thước cửa thông thủy cửa sổ](https://ntp.khomau.com/wp-content/uploads/2024/08/kich-thuoc-cua-thong-thuy-cua-so.jpg)
>>Chi tiết xem tại: Kích Thước Cửa Sổ 1,2,4 Cánh Hợp Phong Thủy – Thu Hút Tài Lộc
Việc hiểu rõ cách tính m2 cửa có thể giúp bạn xác định kích thước cửa một cách chính xác. Điều này đảm bảo rằng cửa bạn lựa chọn sẽ phù hợp với không gian và mang lại sự tiện ích tối đa. Hãy áp dụng những lưu ý trên để tính toán m2 cửa một cách hiệu quả và đảm bảo kết quả chính xác.
