Cửa chớp lật tôn HCT được khách hàng biết đến với độ bền cao nhờ cấu tạo từ tôn tấm chất lượng, sơn mạ kẽm và mạ màu đa dạng. Thiết kế dày dặn, cứng cáp, và chắc chắn giúp sản phẩm này vượt trội.
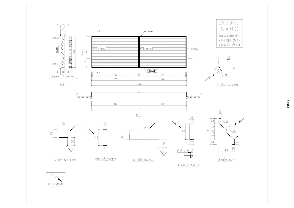
Chiểu dày lá chớp tôn và khung: 0.4 – 1.0 ( tôn lạnh màu) ngoài độ dày trên quý khách vui lòng liên hệ
Lá chớp tôn khổ 240 hoặc 200
Khung: kích thước 10mmx25mmx25mm hoặc 80x25x25mm
Màu Sắc: theo yêu cầu
Kích thước có thể thay đổi theo yêu cầu

Cấu tạo của cửa chớp lật tôn
Cửa chớp tôn được cấu tạo từ các thành phàn cơ bản sau:
Khung sườn: Đây là phần khung chính của cửa, được làm từ thép tôn hoặc hợp kim nhôm. Khung sườn giữ cho cửa chắc chắn và ổn định.
Tấm tôn: Là phần tấm kim loại được sử dụng để tạo thành bề mặt của cửa. Tấm tôn thường có các khe hở đều để đảm bảo sự thông thoáng cho không gian.
Các cơ cấu mở đóng: Cửa chớp tôn có thể được thiết kế để mở ra hoặc đóng vào bằng cách sử dụng các cơ cấu mở đóng như bản lề, bánh xe trượt hoặc cơ cấu xoay.
Bộ khóa và tay nắm: Đây là phần dùng để mở và đóng cửa. Bộ khóa thường được tích hợp để đảm bảo an toàn cho ngôi nhà.
Các phụ kiện và vật liệu bổ sung: Bao gồm các phụ kiện như ốc vít, bulong và các vật liệu bổ sung như keo dán, cao su chống nước để tăng cường tính chắc chắn và chống thấm nước cho cửa.
Cửa chớp tôn có thể được thiết kế theo nhiều kiểu dáng và phong cách khác nhau tùy thuộc vào nhu cầu và sở thích của người sử dụng, nhưng cấu tạo cơ bản vẫn giữ nguyên các thành phần trên để đảm bảo tính chất và công dụng của cửa.








