Cửa chớp tôn nổi bật với độ bền cao được sản xuất từ tôn tấm chất lượng, được phủ sơn mạ kẽm và mạ màu đa dạng. Thiết kế sản phẩm dày dặn, cứng cáp và chắc chắn.
Với khả năng điều khiển chuyển động linh hoạt, giúp sản phẩm mạng lại nhiều công dụng khác nhau như bảo vệ ngôi nhà khỏi nắng nóng, mưa hắt,… nhưng vẫn đảm bảo thông thoáng và tận dụng tối đa ánh sáng tự nhiên.
I/ Đặc điểm của cửa chớp tôn
Cửa chớp tôn là một giải pháp thông gió và lấy sáng hiệu quả cho các công trình xây dựng, đặc biệt là các nhà xưởng, nhà kho, và các công trình công nghiệp. Với thiết kế chắc chắn và khả năng chịu lực tốt, sản phẩm này không chỉ giúp lưu thông không khí mà còn đảm bảo an toàn và bảo vệ công trình khỏi các tác động của thời tiết.
Cửa chớp tôn là sản phẩm được chế tạo từ tôn lạnh hoặc tôn sơn tĩnh điện dày từ 0.35mm – 0.75mm ( có thể làm tới 1.0mm). Ngoài ra, sản phẩm có thể được làm từ thép mạ kẽm với độ dày từ 5cm đến 10cm.
- Kích thước: Sản xuất theo yêu cầu khách hàng
- Nan Z: Được thiết kế với hai đường chấn ở giữa, tăng cường độ cứng và độ bền của nan. Góc và khoảng cách của nan Z sẽ được điều chỉnh theo yêu cầu thiết kế của khách hàng để đảm bảo tính thẩm mỹ và sự thông thoáng cho ngôi nhà.
-
Kết nối nan Z với khung được thực hiện bằng đinh rút nhôm hoặc phương pháp hàn Mig đối với thép dày, đảm bảo độ bền vững của sản phẩm.
-

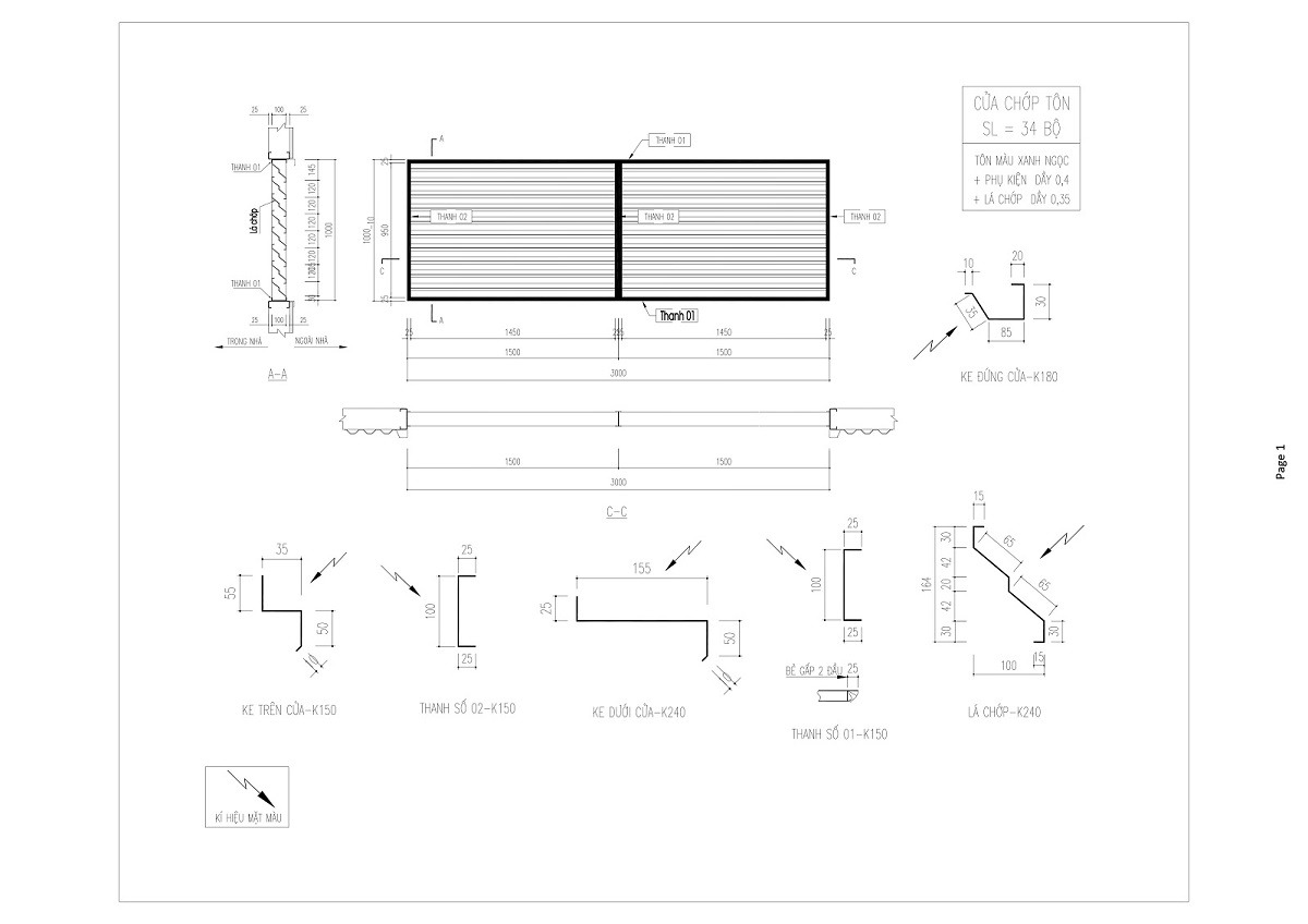
Bản vẽ kỹ thuật cửa chớp tôn – Vật Tư Xây Dựng NTP
Thông số kỹ thuật cơ bản của cửa chớp tôn bao gồm:
| THÔNG SỐ | MÔ TẢ |
|---|---|
| Vật liệu | Tôn lạnh, tôn tĩnh điện chất lượng cao |
| Bản cửa | 5 – 10 cm |
| Độ dày tôn | 0.4; 0.45.; 0.5 ……. 2.0 |
| Chất Liệu | Tôn Hoa Sen, Tôn Hòa Phát , Tôn Đông Á ……….. |
| Màu Sắc | Tùy chọn |
➤Ngoài ra, Vật Tư Xây Dựng NTP còn nhận thiết kế các loại cửa chớp theo yêu cầu của quý khách hàng
II/ Phân loại cửa chớp tôn
Cửa chớp tôn được chia thành hai loại chính là cửa chớp tôn cố định và cửa chớp tôn chớp lật, mỗi loại có đặc điểm và ứng dụng riêng biệt phù hợp với từng nhu cầu sử dụng.
Cửa chớp tôn cố định được thiết kế với các lá tôn gắn cố định trên khung, không thể điều chỉnh góc mở. Với thiết kế đơn giản, cửa chớp tôn cố định đảm bảo khả năng che chắn hiệu quả, ngăn nước mưa, bụi bẩn xâm nhập nhưng vẫn đảm bảo thông gió tốt. Đây là lựa chọn lý tưởng cho các công trình công nghiệp như nhà xưởng, nhà kho, hoặc các công trình yêu cầu thông thoáng nhưng không cần điều chỉnh hướng lá chớp. Chi phí thi công và bảo trì thấp cũng là một ưu điểm nổi bật của loại cửa này.

III/ Ưu điểm nổi bật của cửa chớp tôn thông gió
Cửa chớp đang trở thành sự lựa chọn phổ biến trong các công trình xây dựng hiện đại. Không chỉ mang lại tính thẩm mỹ cao, cửa chớp tôn còn đáp ứng nhiều yêu cầu về kỹ thuật và chức năng:
- Khung và nan được làm từ tôn chất lượng cao, mạ màu chống ăn mòn theo tiêu chuẩn quốc tế.
- Chịu lực tốt, khó bị cong vênh hay biến dạng dưới tác động của thời tiết, khả năng che nắng che mưa tương đối tốt.
- Thiết kế linh hoạt giúp tận dụng được nguồn ánh sáng tự nhiên mà không mất tầm nhìn.
- Cửa chớp còn có khả năng làm giảm tiếng ồn trong nhà xưởng, dễ vệ sinh và bảo dưỡng phù hợp với nhiều loại công trình từ nhà ở đến nhà xưởng.
Nếu quý khách cần thêm thông tin về sản phẩm, vui lòng liên hệ ngay với chúng tôi qua hotline: 0878502555 để được tư vấn và báo giá nhanh chóng.
III/ Ứng dụng cửa chớp lật tôn trong thực tế
1. Nhà xưởng, kho bãi
Cửa chớp tôn là lựa chọn hoàn hảo cho các nhà xưởng, kho bãi do tính linh hoạt trong việc điều chỉnh mở rộng và thu nhỏ kích thước cửa. Đồng thời, khả năng cách âm, cách nhiệt của sản phẩm giúp duy trì nhiệt độ ổn định bên trong không gian làm việc.

2. Công trình công nghiệp
Sử dụng trong các nhà máy, khu công nghiệp để cải thiện môi trường làm việc và đảm bảo sức khỏe cho công nhân.

3. Công trình dân dụng
Dùng làm cửa sổ, cửa thông gió cho nhà ở, văn phòng, giúp không gian luôn thoáng mát và tiết kiệm năng lượng.
IV/ Quy trình sản xuất cửa chớp tôn tại Vật Tư Xây Dựng NTP
Bước 1: Chọn lựa tôn chất lượng cao, chuẩn bị khung thép hình chữ U, V, Z.
Bước 2: Sử dụng máy cắt tôn và máy hàn chuyên nghiệp để tạo ra cánh cửa và khung cửa chớp.

Bước 3: Sau khi lắp ráp cánh cửa vào khung, kiểm tra kỹ lưỡng chất lượng sản phẩm trước khi đưa vào sử dụng.

Cửa chớp tôn sẽ được thiết kế linh hoạt theo yêu cầu của khách hàng. Sản phẩm có mẫu mã đa dạng, thiết kế hiện đại, bền chắc đảm bảo sẽ làm hài lòng mọi khách hàng.
V/ Báo giá cửa chớp tôn tại Vật Tư Xây Dựng NTP
| Tên Hàng | ĐVT | Bản cửa 10cm | Bản cửa 8cm | Bản cửa 5cm |
| Cửa chớp tôn 0.35 (mm) | M2 | 400.000 | 400.000 | 400.000 |
| Cửa chớp tôn 0.4 (mm) | M2 | 450.000 | 450.000 | 550.000 |
| Cửa chớp tôn 0.45 (mm) | M2 | 500.000 | 500.000 | 600.000 |
| Cửa chớp tôn 0.5 (mm) | M2 | 550.000 | 550.000 | 650.000 |
| Cửa chớp tôn 0.58 (mm) | M2 | 750.000 | 750.000 | 850.000 |
| Cửa chớp tôn 0.75 (mm) | M2 | 950.000 | 950.000 | 1050.000 |
> Quy định chung
- Sử dụng tôn hoa sen – màu theo màu của nhà sản xuất
- Lưới chống côn trùng inox 304 + 250.000/m2.
- Dung sai: độ dày +/- 0.03mm.
- Giá chưa bao gồm VAT, vận chuyển
- Thời gian sản xuất 10-15 ngày kể từ ngày nhận cọc và chốt thông số sản xuất
VI/ Quy trình đặt hàng cửa chớp tôn
Bước 1: Quý khách gọi điện đến hotline 0878502555 để công ty tiếp nhận kích thước màu sắc số lượng và độ dày mong muốn của quý khách hàng
Bước 2: Vật tư xây dựng NTP sẽ báo giá tới quý khách hàng
Bước 3: Làm hợp đồng và đặt cọc 40% giá trị đơn hàng
Bước 4: Công ty tiến hành sản xuất đơn hàng của quý khách hàng
Bước 5: Giao hàng cho quý khách hàng và thanh toán số tiền còn lại
Cửa chớp tôn là một giải pháp tuyệt vời cho việc thông gió, lấy sáng và bảo vệ các công trình xây dựng, đặc biệt là trong môi trường công nghiệp.
Với các đặc tính vượt trội như độ bền cao, khả năng chống ăn mòn tốt và thiết kế linh hoạt, cửa chớp tôn không chỉ đáp ứng tốt nhu cầu về công năng mà còn mang lại giá trị thẩm mỹ cao.
Việc lựa chọn cửa chớp tôn phù hợp với từng loại công trình sẽ giúp cải thiện môi trường sống và làm việc, đồng thời gia tăng tuổi thọ và hiệu quả sử dụng của công trình.
Hãy liên hệ với chúng tôi để được tư vấn và lựa chọn sản phẩm chất lượng nhất cho công trình của bạn.




















